所在地
東京都町田市西成瀬3丁目
交通
JR横浜線「成瀬」駅 徒歩25分
営業時間
9:00-18:30
定休日
水曜定休(本店のみ)
外観(2026年3月撮影)
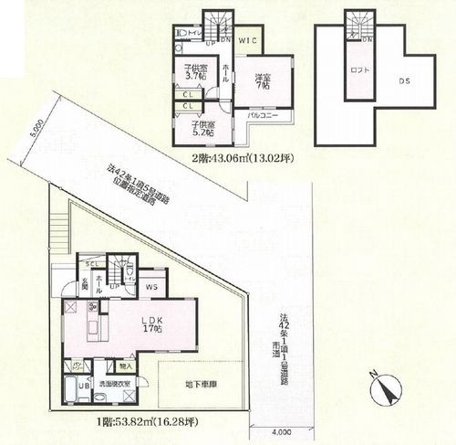
間取
外観(2026年3月撮影)
間取
外観(2026年3月撮影)
外観(2026年3月撮影)
